Nowoczesny dom w budowie, Straszęcin, Dębica
Straszęcin gm. Żyraków Pokaż na mapie ›
Odświeżone: Piątek, 22 Maj, 2026 08:47
689 000 zł
2640 zł/m2
Szczegóły ogłoszenia
- Kategoria: Domy / Sprzedaż
- Powierzchnia:261 m2
- Liczba pokoi:5 i więcej pokoi
- Pow. działki:1132 m2
- Rynek:Pierwotny
- Rok budowy:2020
- Sprzedaż:Pośrednik
- Cena: 689 000 zł / 2640 zł/m2
Opis oferty
Biuro Nieruchomości PROPERTY prezentuje Państwu na sprzedażwyjątkowy dom jednorodzinny w stanie surowym otwartym (w trakcie
budowy) o powierzchni 261 m², realizowany w oparciu o projekt
wykonywany na indywidualne zamówienie. Budynek wyróżnia się
nowoczesną, minimalistyczną bryłą z płaskim dachem oraz dużymi
przeszkleniami, które nadają całości reprezentacyjny charakter,
zapewniają doskonałe doświetlenie wnętrz i efekt „otwartej
przestrzeni”.
To propozycja dla osób, które chcą stworzyć dom o
ponadprzeciętnym standardzie wykończenia — z wyraźnym naciskiem
na architekturę, światło i komfort. Na obecnym etapie budowy
możliwe są zmiany w układzie pomieszczeń, co pozwala dopasować
funkcję domu do własnych potrzeb (np. powiększenie garderoby,
wydzielenie strefy relaksu, dodatkowy pokój gościnny, biblioteka).
Działka i infrastruktura działka: 11,32 ar – płaska, narożna,
dająca duże możliwości aranżacji ogrodu i tarasu
bezpośredni dostęp do drogi gminnej
pełne uzbrojenie: prąd, gaz, woda, kanalizacja
Lokalizacja
Nieruchomość położona w miejscowości Straszęcin – w miejscu,
które łączy spokój z wygodnym dojazdem:
blisko węzła autostrady A4 – Dębica Zachód
szybka komunikacja w kierunku Dębicy i okolic
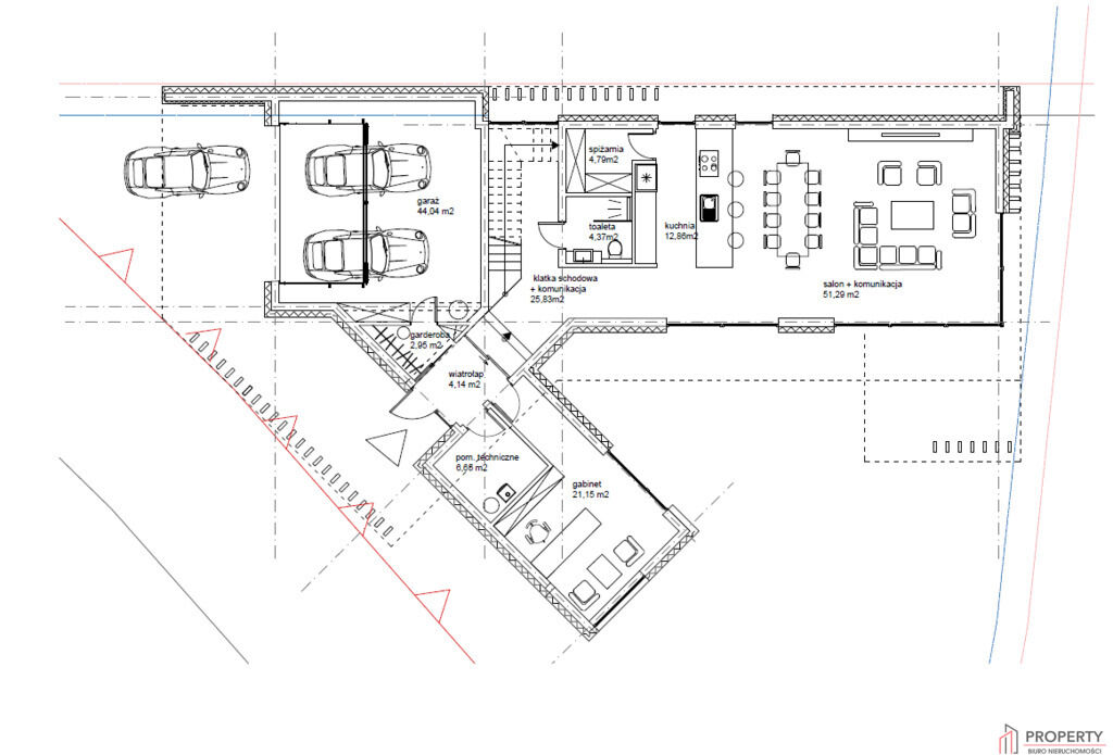
Układ pomieszczeń
Parter garaż: 44,04 m² (komfortowy, z miejscem również na strefę
gospodarczą)
klatka schodowa + komunikacja: 25,83 m²
spiżarnia: 4,79 m²
toaleta: 4,37 m²
kuchnia: 12,86 m²
salon + komunikacja: 51,29 m² (reprezentacyjna strefa dzienna —
idealna pod duże przeszklenia i wyjście na taras)
garderoba: 2,95 m²
wiatrołap: 4,14 m²
pomieszczenie techniczne: 6,65 m²
gabinet: 21,15 m² (świetny na biuro, bibliotekę lub pokój
gościnny)
Piętro komunikacja: 13,57 m²
pralnia: 3,56 m²
łazienka: 10,66 m²
pokój: 14,33 m²
pokój: 14,33 m²
garderoba: 5,92 m²
WC: 5,21 m²
sypialnia: 15,37 m²
Co wyróżnia tę nieruchomość indywidualny projekt – dom o
unikalnej architekturze, a nie powtarzalna „gotowa” bryła
płaski dach i nowoczesna forma nadająca rezydencjonalny charakter
duże przeszklenia – światło, przestrzeń i efektowna strefa
dzienna
duży garaż 44 m² oraz funkcjonalny rozkład z gabinetem na parterze
pełne media i wygodny dojazd – blisko A4 (Dębica Zachód)
możliwość zmian na aktualnym etapie budowy
Sprawdź zainteresowanie tym ogłoszeniem
Wyświetlenia
Data dodania
Ostatnio widziany
Obserwujących
Wysłane zapytania
Odsłony telefonu
Powiadom o podobnych ogłoszeniach
Lokalizacja: Straszęcin
Kategoria: Nieruchomości » Domy » Sprzedaż
Cena: od 585500 zł do 792500 zł Powierzchnia : od 222 m2 do 300 m2
Chcę otrzymywać powiadomienia o nowych ofertach

PROPERTY Nieruchomości
Konto firmowe
Na Lento.pl od 22 lis 2016
Strona użytkownika
- Wypromuj ogłoszenie
- Zgłoś naruszenie
- Drukuj ulotkę
- Edytuj/usuń ogłoszenie
- Udostępnij ogłoszenie
- Dodaj na Facebook































